Login

 
Eengezinswoning
Hertzogstraat 11, Den Helder
Huurprijs: € 766,53 per maand
Overgebleven tijd om te reageren
4 dagen
Aantal reacties
167
Uw positie
Onbekend
Type
Eengezinswoning
Slaapkamers
2
Bouwjaar
1922
Oppervlakte
62.6 m2
housePhoto
housePhoto
housePhoto
housePhoto
Woningkenmerken
Berging extern
Tuin
Verwarming & energie
Elektrisch koken
CV combiketel
Extra’s
Thermostatische douchekraan

Beschrijving

Exclusief huurverhoging per 1 juli 2026

Advertentie
Advertentienummer: 2026041306
Methode Toewijzen: Zoekrecht
Verwachte verhuurdatum: 02 juni 2026
Reageren t/m: 19 april 2026
Corporatie:
Details
Betreft: Eengezinswoning
Type woning: Eengezinswoning
Energielabel: Energieklasse A
Kosten
Huurprijs (netto): € 758,72
Servicekosten: € 7,81
Huurprijs (bruto): € 766,53
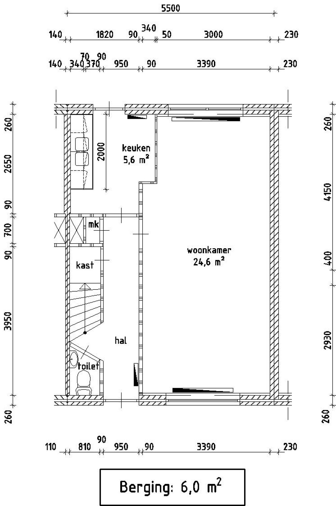
Indeling
Slaapkamer-1: 14.30 m2
Slaapkamer-2: 7.20 m2
Woonkamer-1: 24.60 m2
Keuken-1: 5.60 m2
Badkamer-1: 3.40 m2
Berging-1: 7.50 m2

Totale oppervlakte: 62.60 m2


Elektrisch koken 

Elektrisch koken van toepassing: koken met gas niet mogelijk.


Aanvragen inkomensverklaring

Indien u in aanmerking komt voor een huurwoning heeft u een inkomensverklaring nodig van de Belastingdienst van uzelf en indien van toepassing van uw partner over het jaar 2024/2025 of een definitieve of voorlopig aanslagbiljet over het jaar 2024/2025.

Om teleurstelling bij toewijzing te voorkomen adviseren wij u in verband met de levertijd nu al deze inkomensverklaring aan te vragen bij de Belastingdienst tel. 0800-0543. Bij toewijzing wordt geen uitstel verleend voor het aanvragen van een inkomensverklaring.


 
 
REAGEREN
U moet eerst inloggen om te kunnen reageren. Heeft u nog geen account?
Schrijf u dan snel in.