Login

 
Eengezinswoning
Dijkschouwerslaan 34, Den Helder
Huurprijs: € 874,28 per maand
Overgebleven tijd om te reageren
4 dagen
Aantal reacties
38
Uw positie
Onbekend
Type
Eengezinswoning
Slaapkamers
3
Bouwjaar
1967
Oppervlakte
92.5 m2
housePhoto
housePhoto
housePhoto
housePhoto
Woningkenmerken
Berging extern
Tuin
Verwarming & energie
Elektrisch koken
Zonnepanelen
CV combiketel
Extra’s
Thermostatische douchekraan
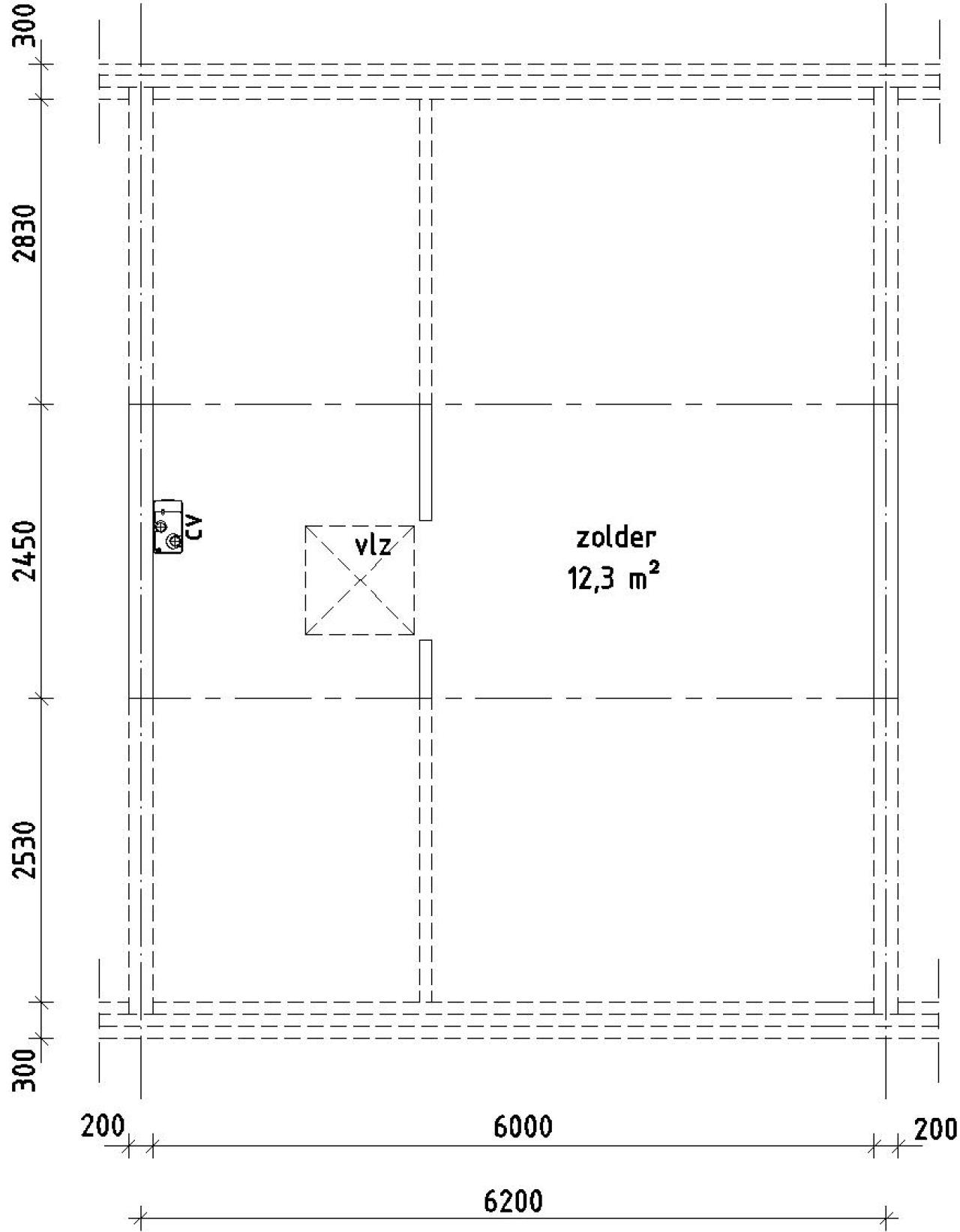
Vlizotrap naar bergzolder

Beschrijving

Advertentie
Advertentienummer: 2025102303
Methode Toewijzen: Zoekrecht
Verwachte verhuurdatum: 02 maart 2026
Reageren t/m: 29 oktober 2025
Corporatie:
Details
Betreft: Eengezinswoning
Type woning: Eengezinswoning
Energielabel: Energieklasse A
Kosten
Huurprijs (netto): € 866,47
Servicekosten: € 7,81
Huurprijs (bruto): € 874,28
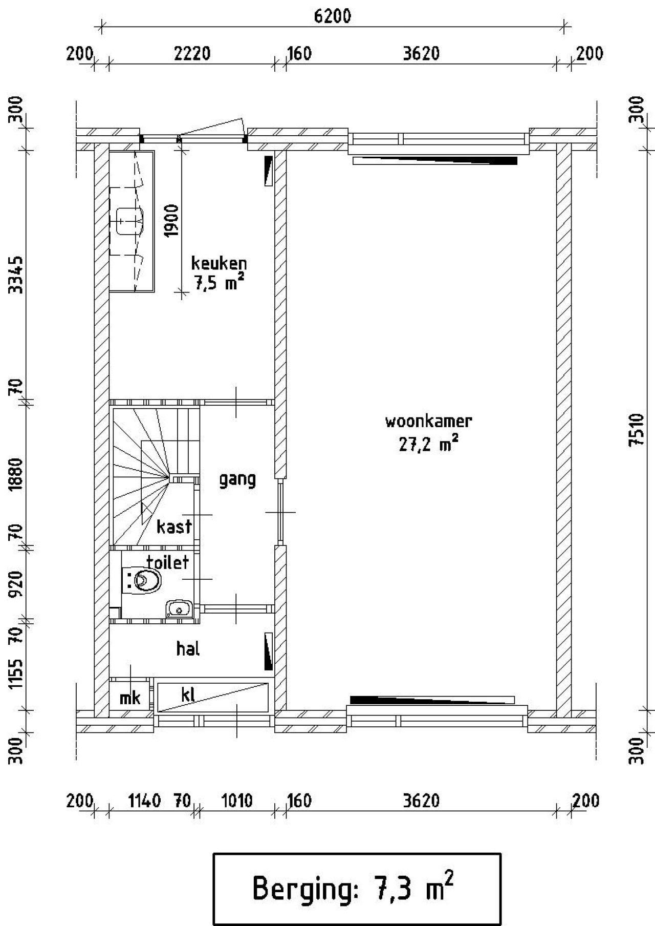
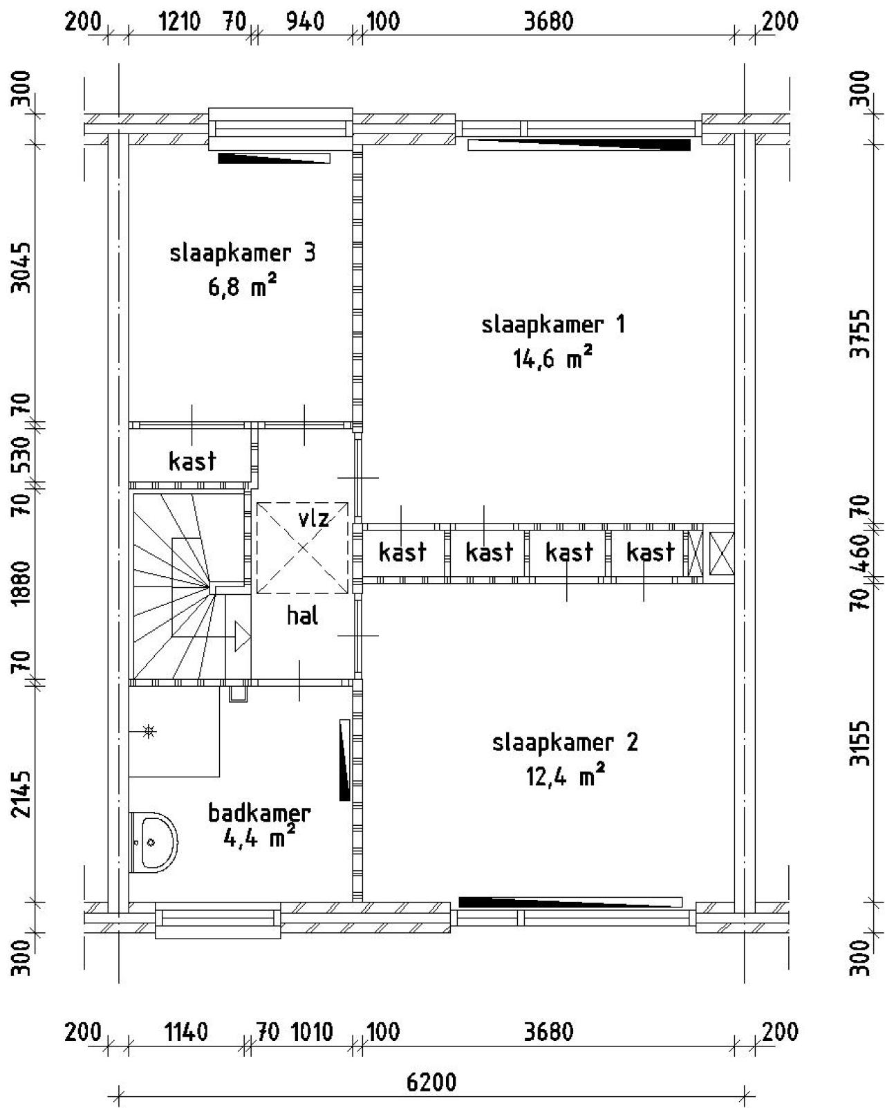
Indeling
Slaapkamer-1: 14.60 m2
Slaapkamer-2: 12.40 m2
Woonkamer-1: 27.20 m2
Keuken-1: 7.50 m2
Badkamer-1: 4.40 m2
Berging-1: 7.30 m2
Zolder-1: 12.30 m2
Slaapkamer-3: 6.80 m2

Totale oppervlakte: 92.50 m2


Deze woning is voorzien van zonnepanelen.


Elektrisch koken van toepassing: koken met gas niet mogelijk.


Indien u in aanmerking komt voor een huurwoning heeft u een inkomensverklaring nodig van de belastingdienst van uzelf en indien van toepassing van uw partner over het jaar 2023/2024 of een definitieve of voorlopig aanslagbiljet over het jaar 2023/2024. Om teleurstelling bij toewijzing te voorkomen adviseren wij u in verband met de levertijd nu al deze inkomensverklaring aan te vragen bij de belastingdienst tel. 0800-0543. Bij toewijzing wordt geen uitstel verleend voor het aanvragen van een inkomensverklaring.


 
 
REAGEREN
U moet eerst inloggen om te kunnen reageren. Heeft u nog geen account?
Schrijf u dan snel in.