Login

 
Eengezinswoning
Schoolstraat 26, Den Helder
Huurprijs: € 690,77 per maand
Overgebleven tijd om te reageren
2 dagen
Aantal reacties
172
Uw positie
Onbekend
Type
Eengezinswoning
Slaapkamers
2
Bouwjaar
1977
Oppervlakte
66.9 m2
housePhoto
housePhoto
housePhoto
Woningkenmerken
Berging extern
Tuin
Verwarming & energie
Elektrisch koken
CV combiketel
Extra’s
Thermostatische douchekraan

Beschrijving

Groepsbezichtiging 

Wij nodigen de eerste 15 kandidaten van de kandidatenlijst uit voor een groepsbezichtiging. De bezichtiging vindt plaats op 29 oktober 2025 om 13.00 uur. Kunt u niet komen dan kunt u iemand machtigen om namens u te kijken. Komt u de woning niet bezichtigen dan slaan wij u over voor deze woning. U mag maximaal één extra persoon meenemen naar de bezichtiging. Tijdens de bezichtiging vertellen medewerkers van de Woningstichting u meer over de buurt en de woning zelf. 

Interesse 

U dient dezelfde dag aan te geven of u nog steeds interesse heeft in de woning. Wij adviseren u om alvast om tijdens de reactiefase onderstaande gegevens te uploaden in uw Woonmatch-account. U krijgt namelijk na de bezichtiging maximaal één werkdag, tot en met 30 oktober 2025, de tijd om uw documenten te uploaden. Zijn de gegevens dan niet compleet of heeft u aangegeven geen interesse te hebben dan slaan wij u over op de kandidatenlijst.  

Verplichten documenten 

Onderstaande documenten zijn van u en uw partner geüpload in uw Woonmatch account:  

  • Geldig legitimatiebewijs
  • Inkomensverklaring of definitieve aanslag van de Belastingdienst over het jaar 2023 of 2024
  • Recent uittreksel met historische gegevens uit de Basisregistratie Personen van de gemeente waarin u woont en staat ingeschreven
  • Geldige verhuurdersverklaring als u een woning huurt van een particuliere of andere corporatie 
  • Verklaring hypotheekverstrekker als uw huidige woning een met hypotheek belaste koopwoning is
  • Twee recente loon- of uitkeringsspecificaties 
  • Als u punten voor economische binding opgaf: uw arbeidsovereenkomst waarop zichtbaar is dat u voor minimaal één jaar in dienst bent met minimaal 20 uur per week op contract
  • Kopie bankpas ten behoeve van automatische incasso 
  • Indien van toepassing een beschikking bewindvoering en akkoordverklaring van uw bewindvoerder voor het accepteren van de woning 

Over de Sluisdijkbuurt 

De wijk direct ten oosten van het huidige treinstation heet Sluisdijkbuurt, omdat hier vroeger een dijk liep, genaamd Sluisdijk. De wijk ligt op loopafstand van het treinstation, busstation en de winkels en overige voorzieningen van het stadshart. De wijk kent verschillende typen woningen, eengezinswoningen en appartementen. In de buurt wonen relatief veel alleenstaande huishoudens. De leefbaarheid in de wijk staat onder druk. We zien overlast van (hang)jongeren, kwetsbare inwoners en drugsproblematiek. Met alle partners in de wijk gaan wij aan de slag om de problemen aan te pakken. Actieve bewoners uit de buurt zetten zich in om de omgeving schoon en netjes te houden. 

Toewijzing 

U heeft de woning bezichtigd en heeft alle documenten geüpload en bent als hoogste geëindigd op de kandidatenlijst dan volgt er een kennismakingsgesprek met ons Wijkteam. Deze afspraak vindt plaats op Het Woonplein. Omdat we leefbaarheidsproblemen zien in de wijk, vinden wij het belangrijk dat onze toekomstige huurders een positieve bijdrage kunnen leveren aan de wijk. Om die reden plannen we een kennismakingsgesprek om te toetsen of er van beide kanten een positieve match is.  Geeft ons Wijkteam een positieve beoordeling, en bent u zelf ook nog steeds enthousiast, dan krijgt u de woning definitief aangeboden.  

Advertentie
Advertentienummer: 2025102115
Methode Toewijzen: Zoekrecht
Verwachte verhuurdatum: 30 oktober 2025
Reageren t/m: 27 oktober 2025
Corporatie:
Details
Betreft: Eengezinswoning
Type woning: Eengezinswoning
Energielabel: Energieklasse C
Kosten
Huurprijs (netto): € 682,96
Servicekosten: € 7,81
Huurprijs (bruto): € 690,77
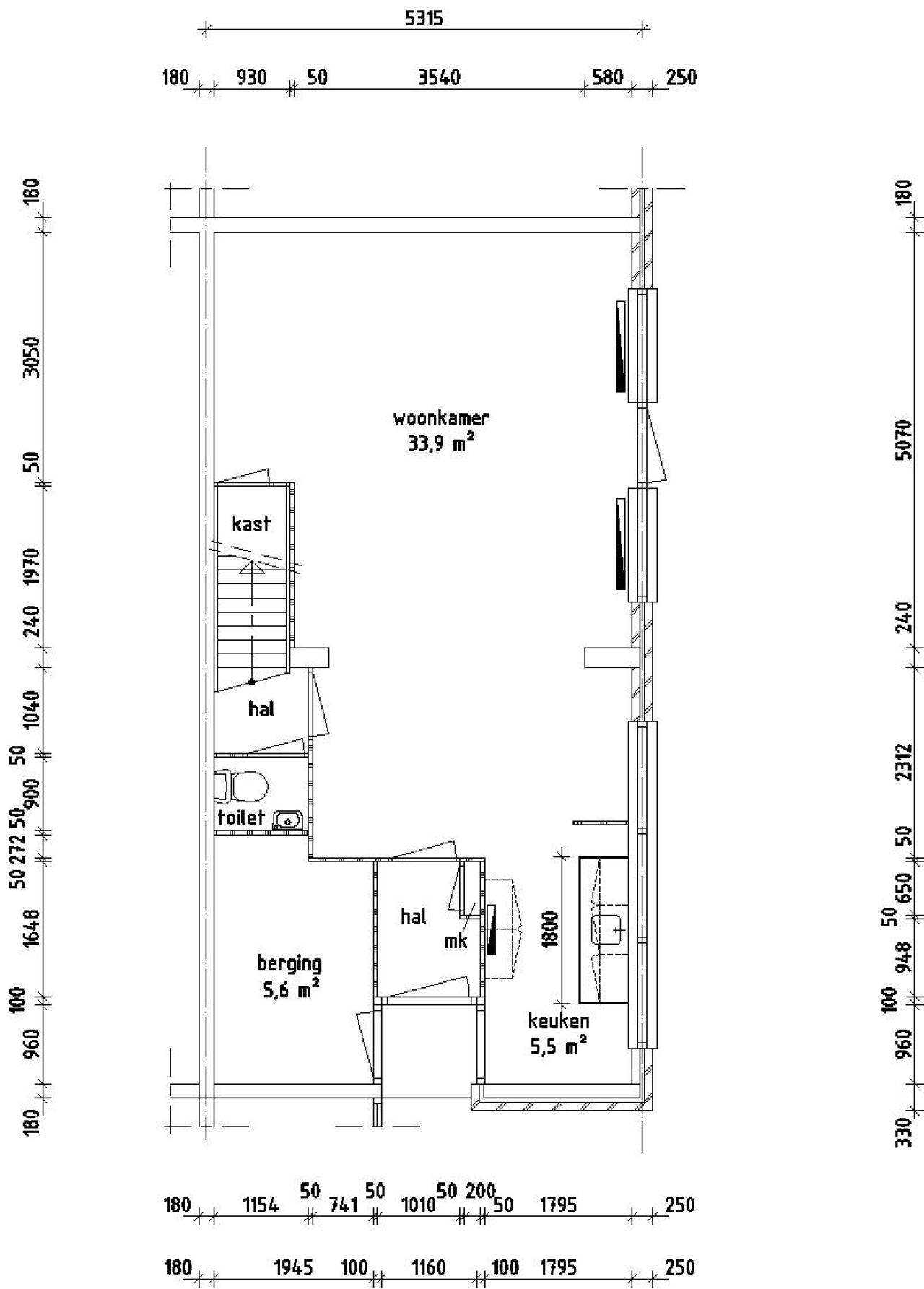
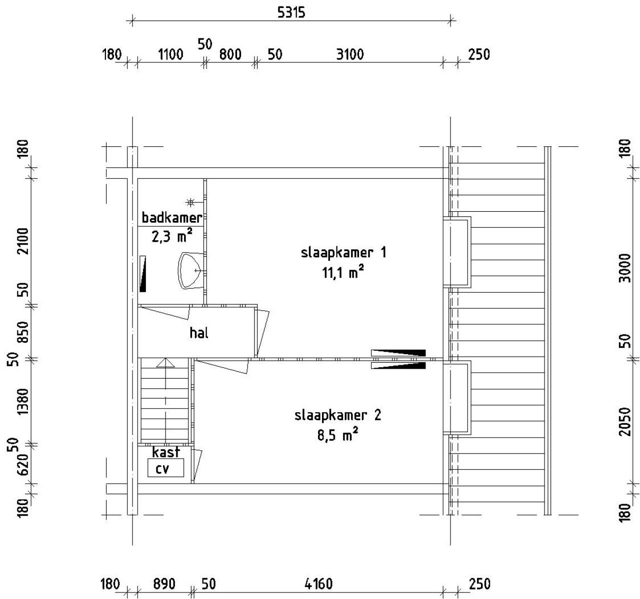
Indeling
Slaapkamer-1: 11.10 m2
Slaapkamer-2: 8.50 m2
Woonkamer-1: 33.90 m2
Keuken-1: 5.50 m2
Badkamer-1: 2.30 m2
Berging-1: 5.60 m2

Totale oppervlakte: 66.90 m2


Elektrisch koken van toepassing: koken met gas niet mogelijk.

Groepsbezichtiging
Er vindt een groepsbezichtiging plaats

Kennismakingsgesprek
Er vindt een kennismakingsgesprek plaats op Het Woonplein.


Indien u in aanmerking komt voor een huurwoning heeft u een inkomensverklaring nodig van de belastingdienst van uzelf en indien van toepassing van uw partner over het jaar 2023/2024 of een definitieve of voorlopig aanslagbiljet over het jaar 2023/2024. Om teleurstelling bij toewijzing te voorkomen adviseren wij u in verband met de levertijd nu al deze inkomensverklaring aan te vragen bij de belastingdienst tel. 0800-0543. Bij toewijzing wordt geen uitstel verleend voor het aanvragen van een inkomensverklaring.


 
 
REAGEREN
U moet eerst inloggen om te kunnen reageren. Heeft u nog geen account?
Schrijf u dan snel in.