Onderhoudsmelding
De ochtend van dinsdag 7 april zal er onderhoud uitgevoerd worden op deze site.
Mogelijk werken links niet meer en zult u opnieuw moeten inloggen.
Ververs eventueel de site.
Als u deze melding niet meer ziet, zijn de werkzaamheden afgerond.
 

Login

 
Eengezinswoning
Jacob Beenstraat 23, Den Helder
Huurprijs: € 952,71 per maand
Overgebleven tijd om te reageren
6 dagen
Aantal reacties
15
Uw positie
Onbekend
Type
Eengezinswoning
Slaapkamers
3
Bouwjaar
1950
Oppervlakte
94.6 m2
housePhoto
housePhoto
housePhoto
housePhoto
Woningkenmerken
Grote tuin
Berging extern
Verwarming & energie
Elektrisch koken
Zonnepanelen
CV combiketel
Extra’s
Thermostatische douchekraan
Extra toilet in badkamer
Vlizotrap naar bergzolder

Beschrijving

Advertentie
Advertentienummer: 2026040901
Methode Toewijzen: Zoekrecht
Verwachte verhuurdatum: 06 juli 2026
Reageren t/m: 15 april 2026
Corporatie:
Details
Betreft: Eengezinswoning
Type woning: Eengezinswoning
Energielabel: Energieklasse A
Kosten
Huurprijs (netto): € 938,57
Servicekosten: € 14,14
Huurprijs (bruto): € 952,71
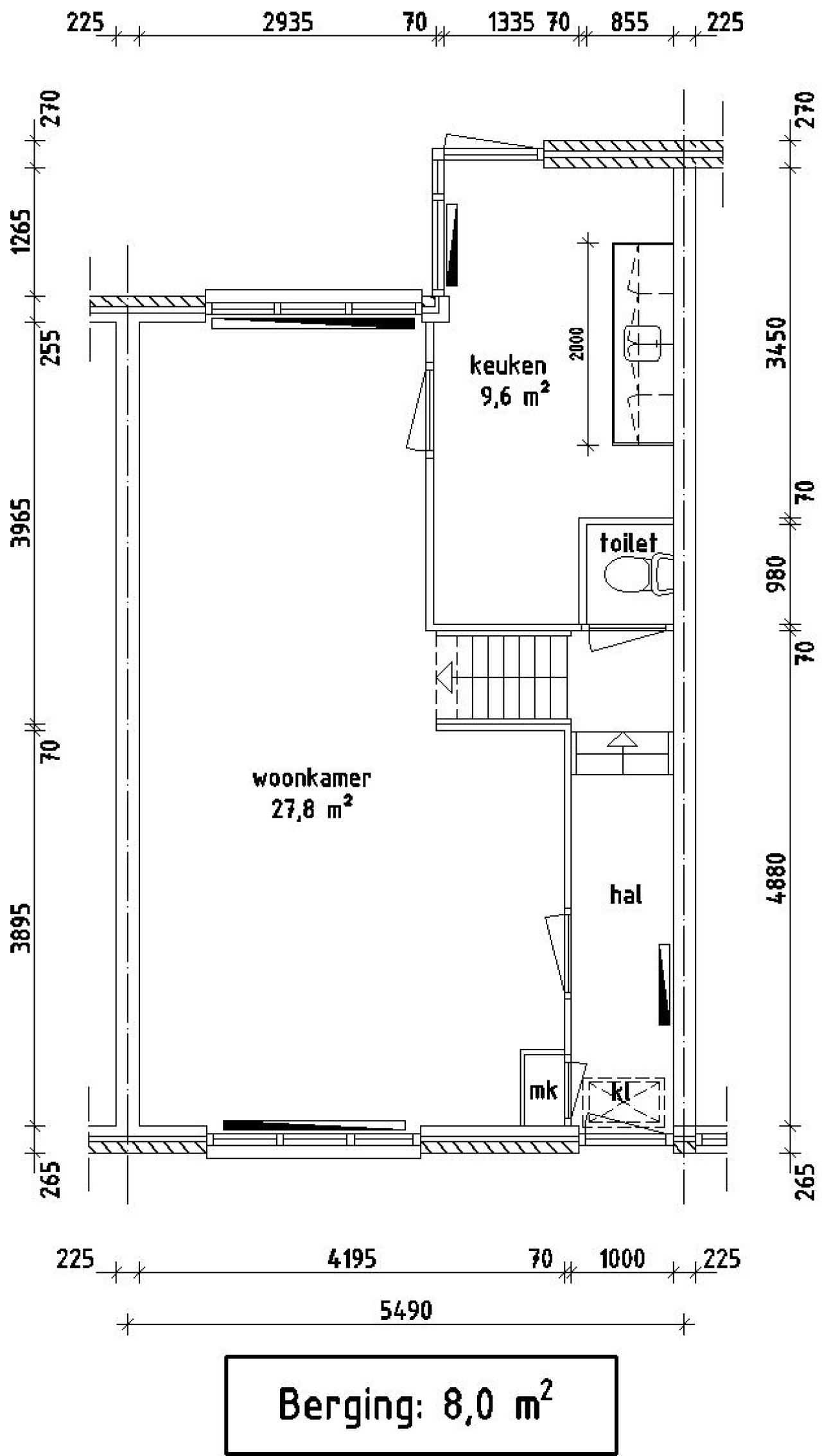
Indeling
Slaapkamer-1: 16.50 m2
Slaapkamer-2: 8.90 m2
Woonkamer-1: 27.80 m2
Keuken-1: 9.60 m2
Badkamer-1: 3.20 m2
Berging-1: 8.00 m2
Zolder-1: 11.70 m2
Slaapkamer-3: 8.90 m2

Totale oppervlakte: 94.60 m2


Elektrisch koken

Elektrisch koken van toepassing: koken met gas niet mogelijk.


Zonnepanelen

Deze woning is voorzien van zonnepanelen.


Aanvragen Inkomensverklaring

Indien u in aanmerking komt voor een huurwoning heeft u een inkomensverklaring nodig van de Belastingdienst van uzelf en indien van toepassing van uw partner over het jaar 2024/2025 of een definitieve of voorlopig aanslagbiljet over het jaar 2024/2025.

Om teleurstelling bij toewijzing te voorkomen adviseren wij u in verband met de levertijd nu al deze inkomensverklaring aan te vragen bij de Belastingdienst tel. 0800-0543. Bij toewijzing wordt geen uitstel verleend voor het aanvragen van een inkomensverklaring.


 
 
REAGEREN
U moet eerst inloggen om te kunnen reageren. Heeft u nog geen account?
Schrijf u dan snel in.