Login

 
Eengezinswoning
Heer Willem van Egmondstraat 60, Den Helder
Huurprijs: € 739,74 per maand
Overgebleven tijd om te reageren
3 dagen
Aantal reacties
100
Uw positie
Onbekend
Type
Eengezinswoning
Slaapkamers
3
Bouwjaar
1967
Oppervlakte
72.6 m2
housePhoto
housePhoto
housePhoto
housePhoto
Woningkenmerken
Berging extern
Tuin
Verwarming & energie
Elektrisch koken
Zonnepanelen
CV combiketel
Extra’s
Vrijhangend toilet
Thermostatische douchekraan
Extra toilet in badkamer

Beschrijving

Advertentie
Advertentienummer: 2025102207
Methode Toewijzen: Zoekrecht
Verwachte verhuurdatum: 26 november 2025
Reageren t/m: 28 oktober 2025
Corporatie:
Details
Betreft: Eengezinswoning
Type woning: Eengezinswoning
Energielabel: Energieklasse A
Kosten
Huurprijs (netto): € 731,93
Servicekosten: € 7,81
Huurprijs (bruto): € 739,74
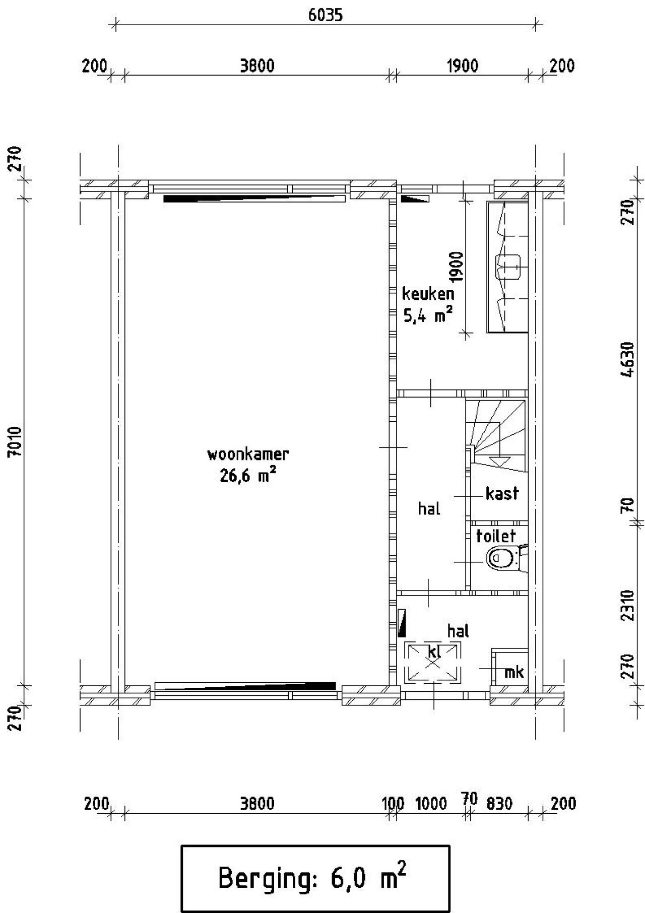
Indeling
Slaapkamer-1: 15.40 m2
Slaapkamer-2: 10.80 m2
Woonkamer-1: 26.60 m2
Keuken-1: 5.40 m2
Badkamer-1: 3.20 m2
Berging-1: 6.00 m2
Slaapkamer-3: 5.20 m2

Totale oppervlakte: 72.60 m2


Deze woning is voorzien van zonnepanelen.


Elektrisch koken van toepassing: koken met gas niet mogelijk.


Indien u in aanmerking komt voor een huurwoning heeft u een inkomensverklaring nodig van de belastingdienst van uzelf en indien van toepassing van uw partner over het jaar 2023/2024 of een definitieve of voorlopig aanslagbiljet over het jaar 2023/2024. Om teleurstelling bij toewijzing te voorkomen adviseren wij u in verband met de levertijd nu al deze inkomensverklaring aan te vragen bij de belastingdienst tel. 0800-0543. Bij toewijzing wordt geen uitstel verleend voor het aanvragen van een inkomensverklaring.


 
 
REAGEREN
U moet eerst inloggen om te kunnen reageren. Heeft u nog geen account?
Schrijf u dan snel in.